GladkevichDESIGN
studio

Архитектура - тоже летопись мира: она говорит тогда, когда уже молчат и песни, и предания. И когда уже ничто не говорит о погибшем народе. (Николай Гоголь).




Проект частного жилого дома недалеко от центра Киева. 2017 г.
Проект выполнен в минималистической манере. На участке существует уже часть постройки и заказчиком была поставлена задача развить композицию, но при этом архитектура должна быть простой и лаконичной. Сложность заключалась ещё и в том, что участок маленький ещё и лежит на большом перепаде рельефа. Тем интереснее было его проектировать.



Проект реконструкции нежилого сооружения г. Бровары 2017 г.
Проект реконструкции нежилого сооружения размещается в центре города и имеет связь с одной из самых насыщенных улиц города. Проект представляет собой надстройку трёх этажей к существующему 3-х этажному зданию. Так как конструкции существующего здания не имеют определённого запаса прочности, то новая часть проектируется на собственных несущих конструкциях. Обе части с внешней стороны соединяются видовым лифтом. Внешний вид имеет современный вид где применяются самые инновационные отделочные и конструктивные элементы.




Проект гостевого домика с зоной барбекю 2017 г.
Проект разработан в современном классическом стиле, как зона отдыха и досуга для жилой усадьбы. В проекте можно обнаружить большое количество отделочных материалов из натурального дерева, что всегда придает уют любому помещению. Зона отдыха находится в углу участка откуда открывается вид на всю усадьбу.




Дизайн проекта плавучей парковки с зоной развлечения 2017 г.
Дизайн проекта плавучей парковки разработан из лёгких недорогих материалов, на плавучих понтонах. Предусматривается 3-ри этажа парковок (общей численностью около 150 мест) и зона развлечения на верхнем 4-м этаже. Аналоги таких парковок уже используются по всему миру. Данная конструкция может быть причалена в любом городе где имеется нужда в паркоместах. Также верхний этаж предполагается отвести под ресторан. Там можно приятно проводить время любуясь вечерними закатами на старинных городских набережных.




Проект садового дома на Русановских садах г. Киев
2016- 2017 гг.
Проект разработан в классическом стиле, как усадьба среди пышной растительности и садов не далеко от центра города. Общая площадь дома составляет 260 м2. Дом имеет полноценный этаж с жилой мансардой, и рассчитан на одну семью. Дом рассчитан для круглогодичного пребывания. Отличительной чертой объекта являются строгость во внешнем виде , которая подчёркивает аристократизм строения.
Проект жилого дома. г. Киев урочище Оболонь, 7-я линия. 2016- 2017 гг.
Данный проект представляет собой одноэтажный дом средних размеров. Общая площадь дома составляет 270 м2. На проектируемом участке растёт многолетний дуб с шикарной кроной прямо посреди участка. Одной из особенностей проекта было сохранение дерева и развитие композиции вокруг него. Любоваться растением можно практически с любой комнаты дома. Дабы не повредить корневую систему дуба фундамент здания спроектирован на сваях. В отделке дома присутствует лицевой декоративный кирпич и много дерева, которое создает особый уют внешнего пространства, и плавно гармонирует с интерьером дома.




Проект жилого дома. c. Козин Киевской области 2016г.
Данный проект представляет собой большой особняк, который размещён неподалёку от Киева. Скорее это комплекс сооружений, который плавно перетекает из одной зоны в другую. Центральная часть дома имеет много просторных помещений в виде спален, зала, холла, игровых, кабинета, бассейна с сауной и парной и т. д. В левом крыле размещается гостевой дом, помещения охраны, технические помещения, кладовые, а также гараж на 5-ть парковочных мест. Правое крыло представлено летней террасой с барбекю и открытым бассейном. Общая площадь дома составляет около 2 500 м2.








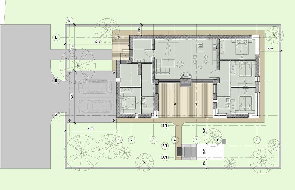
Проект жилого дома. с. Новосёлки 2015-2016г.
Проект предназначен для проживания молодой семьи. Общая площадь дома составляет около 170м2. Под общей крышей размещаются 3-ри отдельные спальни, зал, кухня, кабинет и гараж. Также все эти комнаты сопровождаются сопутствующими помещениями: уборными, котельной, гардеробными, кладовыми и коридорами с маленьким входным холлом. Домик получился компактным и уютным для проживания.
Кафе возле ТРЦ Магелан. Киев 2013г.
Кафе представляет собой метал. каркас с витражным остеклением. Такое решение максимально вписывает экстерьер кафе в окружающую среду. С эстетической точки зрения, остекление на ряду с преимуществами имеет и ряд недостатков. К примеру то, что тяжело в полном остеклении выделить входные двери. Поэтому, принято решение, места где нет дверей, обклеить декор. оракалом из композиций, что создают сидящие посетители кафе. Такая недорогая отделка будет иметь эффект присутствия посетителей в зале, и будет притягательной рекламой для внешних прохожих.
Проект Spa центра. Киев 2012г.
(В составе фирмы "Проектные системы").
Проект обладает яркой индивидуальностью, как в плане конструктивных особенностей, так и во внешних эстетических характеристиках. Внешняя форма комплекса задумывалась как янтарный камень неправильной формы, который вписывается в зелёный ландшафт окружающей территории, являясь его "изюминкой". Это один из предложенных вариантов перспективных изображений.
Проект загородного дома в пос. Княжичи Киевской обл. Киев 2013г.
Общая площадь дома около 120м2. Особенность этого дома заключается в том, что он запроектирован по всем канонам экологической архитектуры. Внешние стены из соломенных блоков. Внутренние перегородки и стены из кирпича. Сориентирован дом на юго- восток. Часть внешней отделки дома состоит из горизонтальных досок, а другая - отделанная глиной. Все окна выходят на юго- восток. С северной стороны есть только несколько маленьких декоративных окон. Их цель - игра света внутри помещения.
Проект дома в центре Киева. Киев 2009г. (В составе фирмы "Гранд Проект").
Общая площадь дома около 1770м2. Дом размещён на крутом рельефе, где перепад уровней составляет около 22м. Поэтому заезд в дом осуществляется как с верхнего, так и с нижнего уровней. При этом в верхней части размещается жилая часть с бассейном, а нижний уровень служит для частного офиса хозяина дома. Совмещаются уровни через лифтовую группу.
Проект частного дома в Киеве. Киев 2008г.
Общая площадь дома около 300м2. Дом находится на окраине Киева с хорошей транспортной доступностью до центра столицы. Он рассчитан на одну семью, где предусмотрено всё для комфортного жилья. Первый этаж представляет собой полуоткрытое пространство с плавным перетеканием из одной зоны в другую. Имеется каминная, она является дополнением к гостиной и легко соединяется своим пространством с входным холлом дома. Второй этаж - это интимное пространство для каждого из членов семьи.
Проект частного дома в пос. Козин Киевской области. Киев 2007г. (В составе фирмы "Гранд Проект").
Дом площадью около 920м2. Просторные, плавно перетекающие пространства первого этажа создают особую магию комфорта, открытости и свободы. Дом с лёгкостью вписывается в территорию, окружённую большими соснами. Внешний вид дома выполнен в современном стиле, который обладает своим неповторимым характером и индивидуальностью.
Проект загородного дома на окраине Киева. Киев 2004г. (В составе фирмы "Гранд Проект").
Общая площадь дома около 870м2. Дом расположен в очень живописном месте с собственным озером на участке. Интересным фактом является то, что первый этаж дома составляет около 750м2. Лишь несколько гостевых спален находятся на втором этаже. Композиция помещений развивается вокруг внутреннего дворика, который образуется в следствии "П" образной структуры дома.
Проект загородного дома Киевской обл., Обуховский район. Киев 2014 г.
Общая площадь дома около 1000м2. Это дом в классическом стиле, который расположен в живописном месте у берега реки. Дом рассчитан на большую семью где каждый из членов имеет свою зону.
Первый этаж объединяет в себе зал, столовую, кухню, кабинет, зону обслуги и входную зону с соответствующим набором помещений. На втором этаже расположены спальни для всей семьи. На мансардном, верхнем, уровне размещаются помещения для развлечений и занятий спортом.
Проект Гостинично - офисного комплекса по ул. Набережное шоссе г. Киев 2014г.
Нами была предложена концепция, по которой может развиваться разработка внешнего дизайна данного комплекса. Была проработана малая часть комплекса где основной задачей было создать здание, которое бы гармонично вписывалось в окружающую среду ландшафта Киевских холмов и окружающих берегов Днепра. На фасадах можно увидеть использование органических материалов это и так званых "зелёных фасадов" и различных цветовых решений, которые дополняют пейзажи Киевских парков.




Проект жилого дома. г. Ровно 2015-2016г.
Проект предназначен для проживания молодой семьи, которая часто путешествует по миру. Поэтому проект вобрал в себе стилистические особенности современной Европы. Яркой особенностью является само место размещения дома. Участок расположен непосредственно у уреза крупного водоёма, откуда открывается прекрасный вид на город. Болотистые грунты и высокий уровень грунтовых вод заставили приподнять дом и устраивать свайный фундамент.




Проект центра тонкополевой медицины. Крым 2015г.
Необычная архитектура здания сразу же привлекает к себе внимание прохожих.Арки, из которых и состоит форма купола, имеют, с конструктивной точки зрения, форму олицетворяющую идеальное распределение нагрузки на несущие элементы. Также форма здания позволяет максимально раскрыть обзор крымских пейзажей. При этом, при необходимости, можно с помощью внешних ролет закрыться от жгучих солнечных лучей, практически в любой части. Бело - фиолетовый цвет здания символизирует связь космического с земным и является символом центра тонкополевой медицины. У макушки здание окрашено в белый цвет и потом плавно переходит в фиолетовый ближе к основанию конструкций. Кроме того, на участке есть сооружение в виде малой пирамиды построенной по принципу золотого сечения и сориентированного по сторонам света. Это помещение служит для уединения и медитаций.
Проект благоустройства территории по ул. Амосова г. Киев 2015г.
Данный проект является яркой демонстрацией того как в стеснённых условиях на крутом рельефе можно сочетать зоны отдыха с замечательными видовыми характеристиками. Была поставлена следующая задача : вдоль дороги, которая соединяет два офисных здания на крутом рельефе выделить зоны отдыха, где офисные сотрудники имели бы возможность расслабиться и уединиться в обеденный перерыв. Поэтому даже малейшие островки на крутом рельефе служили местом для устройства скамеек, декоративных навесов и т.д., и соединялись пешеходными магистралями друг с другом. Даная работа свидетельство того, что даже в сложных условиях возможно и нужно находить интересные проектные решения.








Проект офисного комплекса по ул. Амосова г. Киев 2015г.
Нами была предложена концепция возможного архитектурного развития офисного комплекса по ул. Амосова. Сложность проекта заключается в больших перепадах рельефа на участке и ,кроме того, в правильном и грамотном подходе к тому, насколько гармонично он должен вписаться в уже существующий городской ансамбль.
Вашему вниманию представлена 1-я очередь строительства с террасным зонированием под парковочные участки внутри имеющейся территории. Была идея показать каскады зданий, окрашенные в разные цвета, что добавило комплексу яркости и узнаваемости, что особо актуально в сером суетливом мегаполисе.


































